Ruhige Neubau-Doppelhaushälfte – modern, lichtdurchflutet mit Süd-/Ostgarten & Carport
Beschreibung:
In naturnaher und ruhiger Lage von Unterschleißheim-Riedmoos entsteht diese moderne Neubau-Doppelhaushälfte – ein Zuhause, das mit Klarheit, Licht und Geborgenheit begeistert. Auf rund 103 m² Wohnfläche entfaltet sich ein durchdachtes Wohnkonzept, das den Alltag erleichtert und Raum für individuelle Lebensentwürfe bietet. Mittelpunkt des Hauses ist der großzügige Wohn- und Essbereich mit direktem Zugang auf die Terrasse und in den sonnigen Garten – ideal für entspannte Stunden im Freien, Familienessen oder gemütliche Abende mit Freunden. Drei helle Schlafzimmer im Obergeschoss schenken Rückzugsorte für jedes Alter und jeden Lebensstil. Im Speicher stehen praktische Abstellmöglichkeiten zur Verfügung – ein Plus, das im Alltag für Ordnung und Leichtigkeit sorgt.Die Architektur ist modern und klar, der Schnitt funktional und durchdacht. Große, teils bodentiefe Fenster öffnen den Blick nach draußen, lassen viel Tageslicht herein und machen das Zuhause zum Wohlfühlort. Besonders hervorzuheben ist die Ausrichtung des Gartens nach Süden und Osten – der perfekte Ort, um die Sonne zu genießen und zur Ruhe zu kommen.
Auch die Ausstattung überzeugt: Hochwertig in der Ausführung und gleichzeitig flexibel in der Gestaltung. Käufer haben die Möglichkeit, bei Bodenbelägen, Innentüren oder Treppen persönliche Akzente zu setzen. Im Rahmen der Bemusterung können zudem individuelle Wünsche berücksichtigt werden (ggf. gegen Aufpreis). Eine Küche ist nicht enthalten und lässt sich frei nach eigenen Vorstellungen planen – von der modernen Designküche bis zur gemütlichen Landhausvariante. Zur Immobilie gehört ein Carport direkt am Haus.
Ein weiterer Pluspunkt: Die Bodenplatte ist bereits fertiggestellt, sodass der Baubeginn unmittelbar bevorsteht. Zudem sind die Erschließungskosten bereits bezahlt.
Vereinbaren Sie noch heute einen Besichtigungstermin und überzeugen Sie sich selbst.
Lagebeschreibung:
Riedmoos, ein Ortsteil von Unterschleißheim, bietet eine seltene Kombination: Hier genießen Sie naturnahe Ruhe und zugleich die Nähe zur Stadt. Eingebettet in Felder und Wiesen wohnen Sie in einer gewachsenen Nachbarschaft, die Geborgenheit vermittelt und gleichzeitig viel Raum für Erholung lässt. Ob Paare, die einen Rückzugsort mit urbaner Anbindung suchen, oder Familien, die Wert auf Natur, Sicherheit und kurze Wege legen – dieser Standort erfüllt viele Wünsche..In wenigen Minuten erreichen Sie Oberschleißheim und Unterschleißheim mit vielfältigen Einkaufsmöglichkeiten, Supermärkten, Restaurants und Cafés. Auch Schulen, Kindergärten und Ärzte sind schnell erreichbar – ein klarer Vorteil für den Alltag. Freizeitliebhaber schätzen den beliebten Regattaparksee, der mit dem Fahrrad in kurzer Zeit erreichbar ist. Hier treffen sich Sportler, Familien und Genießer, um Natur, Wasser und Freizeit in vollen Zügen auszukosten. Spaziergänge oder Radtouren durch die umliegende Landschaft beginnen direkt vor der Haustür.
Die Verkehrsanbindung ist hervorragend: Mit der S-Bahn erreichen Sie die Münchner Innenstadt ebenso wie den Flughafen München direkt und unkompliziert. Über die Autobahnen A92 und A99 sind Sie außerdem optimal in alle Richtungen angebunden. Besonders praktisch: Die Bushaltestelle der MVV-Linie 299 liegt nur wenige Meter vom Haus entfernt und bringt Sie direkt nach Unterschleißheim zur S-Bahn.
Ausstattung:
Energieausweis:
- Energieeffizienzklasse:
- liegt noch nicht vor
- wesentlicher Energieträger:
- Luft/wasser Wärmepumpe
Ausstattungsbeschreibung:
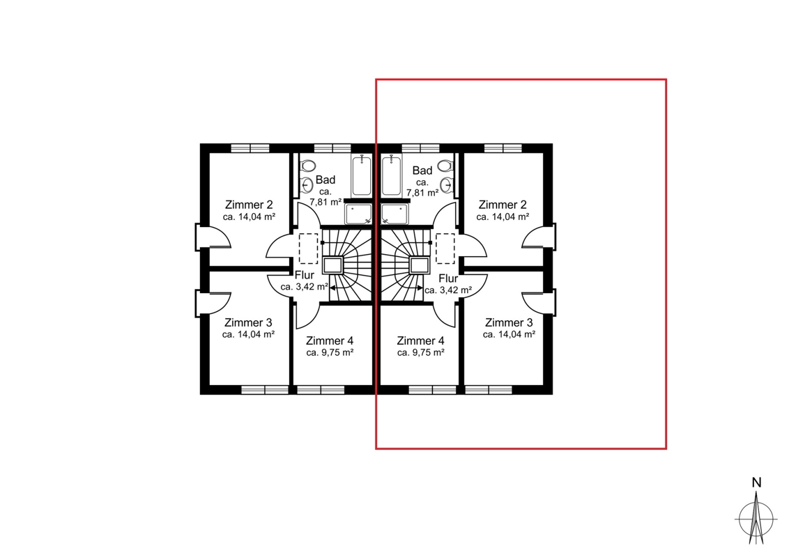
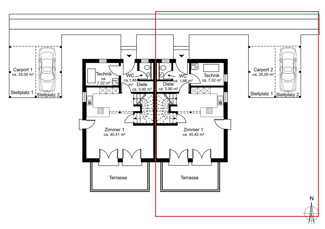
- Großzügiger Wohn-/Essbereich mit Zugang zur Terrasse und in den Garten- Drei helle Schlafzimmer im Obergeschoss
- Speicher, ideal als zusätzlicher Stauraum
- Sonnige Terrasse und eigener Garten
- Großzügige Fensterflächen, teils bodentief
- Innenfensterbänke in Naturstein
- Fußbodenheizung mit Einzelraumsteuerung in allen Wohnbereichen
- Energieeffiziente Luft-Wasser-Wärmepumpe mit integrierter Lüftungsanlage und Kühlfunktion
- Modern ausgestattetes Bad mit Badewanne, Dusche, WC und Waschtisch
- Zusätzliches Gäste-WC im Erdgeschoss
- Elektrische Rollläden
- Innenliegende Holztreppe
- Gartenwasseranschluss
- Hochwertige Bodenbeläge individuell auswählbar (Gestaltung im Rahmen der Bemusterung)
- Innentüren individuell auswählbar
- Sonderwünsche im Rahmen der Bemusterung möglich (ggf. gegen Aufpreis)
- Carport mit zwei Stellplätzen
- Real geteiltes Grundstück mit sonniger Süd-/Ostausrichtung
- Küche nicht enthalten – freie Gestaltungsmöglichkeit
- BEG/KfW-Effizienzhaus 55EE (GEG)
- Schlüsselfertige Übergabe
Sonstige Angaben:
Alle Angaben sind freibleibend, unverbindlich, ohne Gewähr und basieren auf Informationen, die uns von unserem Auftraggeber sowie dem Bauunternehmen mitgeteilt wurden. Wir übernehmen keine Gewähr für Vollständigkeit, Richtigkeit und Aktualität. Irrtum und Zwischenverkauf vorbehalten.Grundstück und Bauvorhaben stammen aus einer Hand: Die Verkäuferin ist sowohl Grundstückseigentümerin als auch Bauherrin.
Bei diesem Angebot handelt es sich um ein noch zu errichtendes Gebäude. Ein Energieausweis liegt daher derzeit nicht vor und wird erst nach Fertigstellung erstellt.
Sollte Ihnen die von uns nachgewiesene Immobilie bereits bekannt sein, teilen Sie uns dieses bitte unverzüglich mit. Die Weitergabe dieses Exposés an Dritte ohne unsere Zustimmung löst gegebenenfalls Schadensersatzansprüche aus.
Während der gesamten Projektphase steht Ihnen ein persönlicher Projektleiter für Fragen, Sonderwünsche und Detailabsprachen zur Seite, um einen reibungslosen und transparenten Ablauf von der Planung bis zur Schlüsselübergabe zu gewährleisten.
Die dargestellten Grundrisse und Angaben entsprechen dem Stand der Eingabeplanung. Im Rahmen der Ausführungs- und Detailplanung können aufgrund bautechnischer Erfordernisse oder behördlicher Auflagen Änderungen gegenüber dieser Planung möglich sein. Für die Ausstattung ist die Baubeschreibung maßgebend. Dargestellte Möbel und Einbauten sind beispielhaft. Die Grundrisse sind nicht zur Maßnahme für die Möblierung geeignet. Die zeichnerische Darstellung der Perspektiven und Fassaden sowie deren Farbgestaltung geben die Sicht des Illustrators wieder und sind deshalb nicht verbindlich.
Wir weisen Sie darauf hin, dass unsere Tätigkeit im Erfolgsfall eine Vermittlungs- und/oder Nachweisprovision nach sich zieht. Bei Verkauf beträgt die Provision 3,57 % inkl. 19 % MwSt. des notariell beurkundeten Kaufpreises. Der Immobilienmakler hat einen provisionspflichtigen Maklervertrag mit dem Verkäufer in gleicher Höhe abgeschlossen.
Für weitere Informationen oder zur Vereinbarung eines Beratungstermins stehen wir Ihnen gerne zur Verfügung.
Die Vermarktung dieser Immobilie erfolgt ausschließlich über uns als beauftragten Makler. Eine direkte Kontaktaufnahme mit den Eigentümern ist ausdrücklich nicht gewünscht.
Exposé Stand: 21.10.2025 – Änderungen vorbehalten.
Sie wollen mehr erfahren?
Wenn Sie uns eine Nachricht über das Kontaktformular senden, melden wir uns schnellstmöglich bei Ihnen:

 
										







