Grundstück mit viel Potential und Altbestand in verkehrsgünstiger Lage von Waldtrudering!
Beschreibung:
Sie suchen ein Grundstück zur Neubebauung?Im begehrten München-Waldtrudering bieten sich Ihnen viele Möglichkeiten. Die familienfreundliche Nachbarschaft ist geprägt von Reihen- und Doppelhäusern sowie kleinen Mehrfamilienhäusern.
Voll erschlossen und in sehr guter Lage können Sie hier Ihre Wohnideen verwirklichen.
Lagebeschreibung:
Dieses Grundstück mit Südausrichtung und Altbestand liegt in einer gut angebundenen und familienfreundlichen Umgebung in München-Waldtrudering.Mehrere Bäckereien sind nur einen kurzen Spaziergang entfernt und für den täglichen Einkauf ist ein Supermarkt in der Nähe, sodass Sie Ihre Besorgungen ohne großen Aufwand erledigen können.
Die Anbindung an den öffentlichen Nahverkehr ist hervorragend. Die Bahnstation Gronsdorf ist in wenigen Minuten zu Fuß erreichbar und bietet eine schnelle Verbindung in die Innenstadt. Auch die nächste Bushaltestelle ist schnell erreichbar, was den täglichen Pendelverkehr erleichtert.
Zudem bietet die Umgebung eine Vielzahl an Freizeitmöglichkeiten. Der nahegelegene Riemer Park mit Badesee lädt zu entspannenden Spaziergängen ein und bietet Raum für Erholung im Grünen. Für Familien mit Kindern ist die Nähe zu Bildungseinrichtungen und Kindertagesstätten von großem Vorteil.
Der Flughafen München ist in ca. 30 Autominuten erreichbar, was die Lage auch für Vielflieger attraktiv macht. Die Nähe zur Autobahn A 99 (2,6 km) sorgt für eine gute Erreichbarkeit und Flexibilität in der individuellen Mobilität.
Ausstattung:
Energieausweis:
- A+
- A
- B
- C
- D
- E
- F
- G
- H
- Baujahr:
- 1957
- Endenergiebedarf:
- 228,72 kWh/(m²a)
- Energieausweis:
- Bedarfsausweis
- Energieeffizienzklasse:
- E
- Energieausweis gültig bis:
- 15.09.2035
- wesentlicher Energieträger:
- Gas
- Baujahr lt. Energieausweis:
- 1957
Ausstattungsbeschreibung:
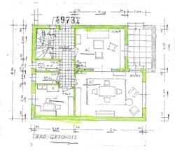
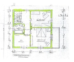
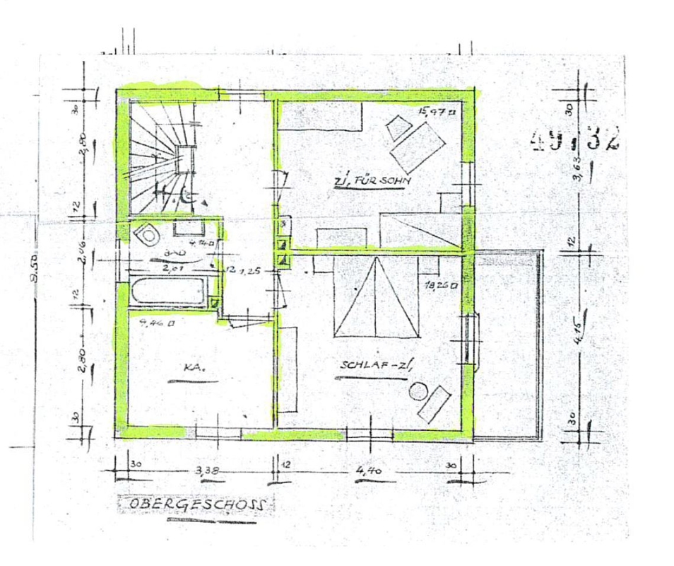
+ Grundstück mit Altbestand (kleines EFH) zum Abriss+ Grundstücksgröße 850 m²
+ GFZ 0,7
INFRASTRUKTUR:
Einkaufen: 420 – 740 Meter mehrere Supermärkte
Schulen, Kindertagesstätten: 120 – 410 Meter entfernt
Freizeit und Sport: 290 – 410 Meter entfernt
Gastronomie: 85 – 390 Meter entfernt
Ärzte, Apotheken: 130 – 475 Meter entfernt
Autobahnauffahrt: 2,6 km entfernt
Bahnhof Gronsdorf: 475 Meter entfernt
Bus Bahnstraße: 155 Meter entfernt
Sonstige Angaben:
Der Verkauf erfolgt im Kaufangebotsverfahren.Das Kaufangebotsverfahren ist keine Auktion!
Der Verkäufer ist frei in seiner Entscheidung, ob er das Angebot annimmt.
Auch Sie als Käufer sind nach Abgabe des Angebotes bis zum Notartermin nicht gebunden.
Es handelt sich um eine Kaufabsichtserklärung Ihrerseits zu dem von Ihnen genannten Kaufpreisangebot. Wenn Sie diese Immobilie kaufen wollen, geben Sie nach dem Besichtigungstermin ein schriftliches Gebot ab. Dieses Gebot soll dem maximalen Preis entsprechen, den Sie bereit sind, für das Objekt zu zahlen!
Dieses muss über dem Mindestangebotspreis von 1.295.000 Euro liegen.
Haben Sie weitere Fragen zum Ablauf des Kaufangebotsverfahrens? Bitte kontaktieren Sie uns!
Wir weisen Sie darauf hin, dass unsere Tätigkeit im Erfolgsfall eine Vermittlungs- und oder Nachweisprovision nach sich zieht. Bei Verkauf beträgt die Provision 3,57% inkl. MwSt. des notariell beurkundeten Kaufpreises. Der Immobilienmakler hat einen provisionspflichtigen Maklervertrag mit dem Verkäufer in gleicher Höhe abgeschlossen.
Sie wollen mehr erfahren?
Wenn Sie uns eine Nachricht über das Kontaktformular senden, melden wir uns schnellstmöglich bei Ihnen:

 
										






















